NIEUWBOUW BUNGALOWS IN HONDÓN DE LAS NIEVES
Nieuwbouw 4 bungalows gelegen in Hondón de las Nieves (Alicante)
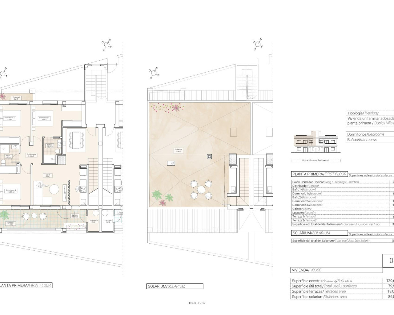
Alle bungalows hebben 3 slaapkamers met inbouwkasten, 2 badkamers, grote woonkamer, inbouwkeuken en terras.
De woningen zijn beschikbaar op de begane grond met terras/tuin voor en achter en op de bovenste verdieping met terras en privésolarium.
De woningen op de eerste verdieping hebben fotovoltaïsche panelen op het dak voor energiebesparing.
De keukens zijn volledig ingericht en afgewerkt met granieten of synthetisch agglomeraat werkbladen (silestone of vergelijkbaar).
De badkamers zijn afgewerkt met hoogwaardig sanitair en kranen met ingebouwde stortbak.
Deze woningen hebben een pre-installatie voor airconditioning met warmtepomp, geforceerde ventilatie met warmteterugwinning, aerothermisch systeem voor sanitair warm water, de modernste thermische en akoestische isolatie, aluminium buitenschrijnwerk met koudebrugonderbreking en rolluiken.
Hondón de las Nieves is een stad in de Valenciaanse Gemeenschap, Spanje.
Het ligt in het zuidwesten van de provincie Alicante, in de regio Vinalopó Medio.
De stranden en de luchthaven van Alicante liggen op slechts 30 minuten rijden.