Nieuwbouwwoningen in Ibiza-stijl in Dolores Costa Blanca
Exclusieve villa's in een rustige omgeving
Dit boutique woonproject bestaat uit slechts 6 nieuwbouwwoningen met elegante architectuur in Ibiza-stijl, gelegen in het charmante stadje Dolores in het zuiden van de provincie Alicante. Deze woningen liggen in een nieuw uitbreidingsgebied dicht bij het stadscentrum en bieden een rustige woonomgeving, terwijl ze toch op loopafstand liggen van lokale voorzieningen zoals winkels, restaurants, supermarkten en medische faciliteiten. Dolores wordt omringd door het vruchtbare landschap van Vega Baja, dat bekend staat om zijn ontspannen sfeer en uitstekende levenskwaliteit.
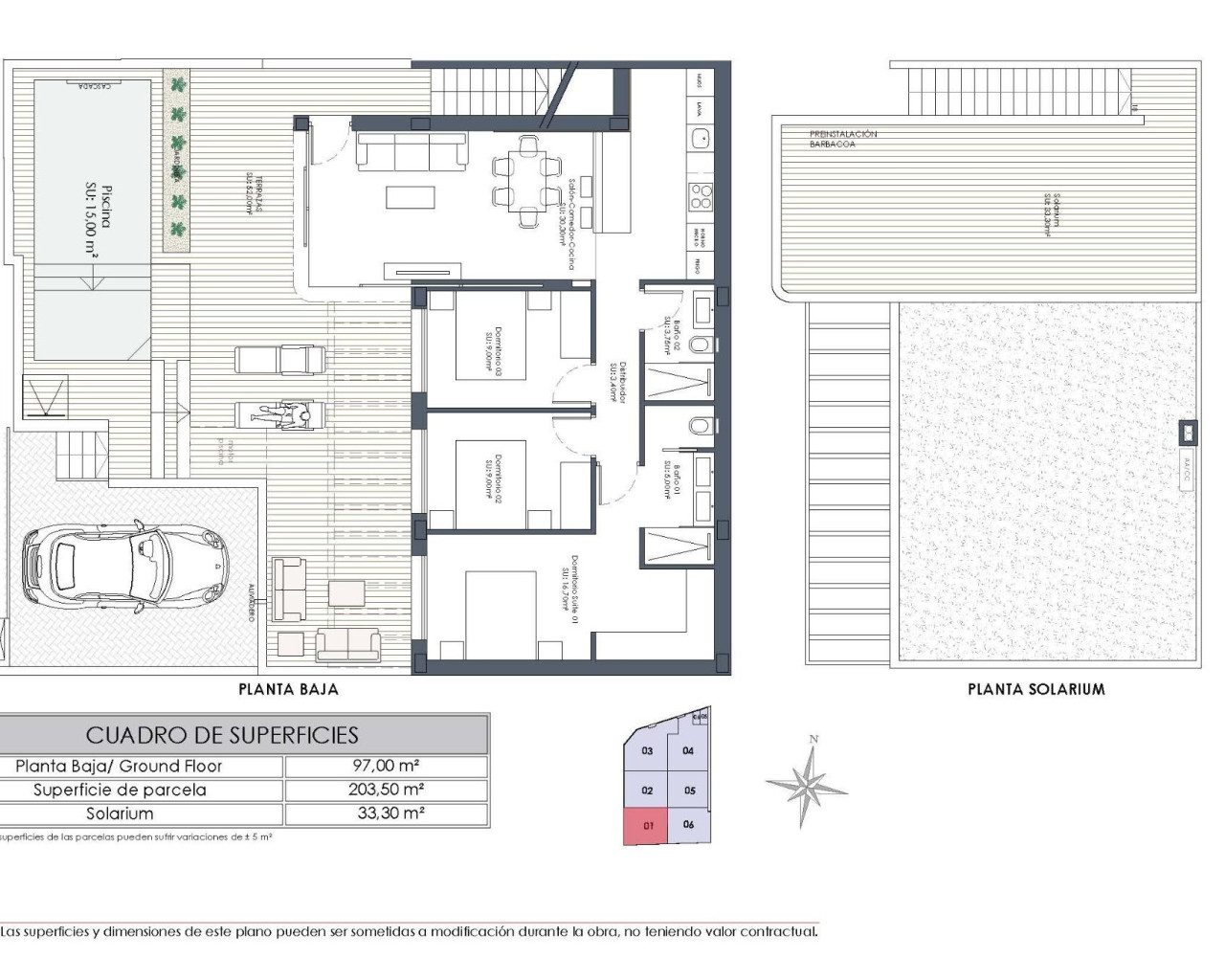
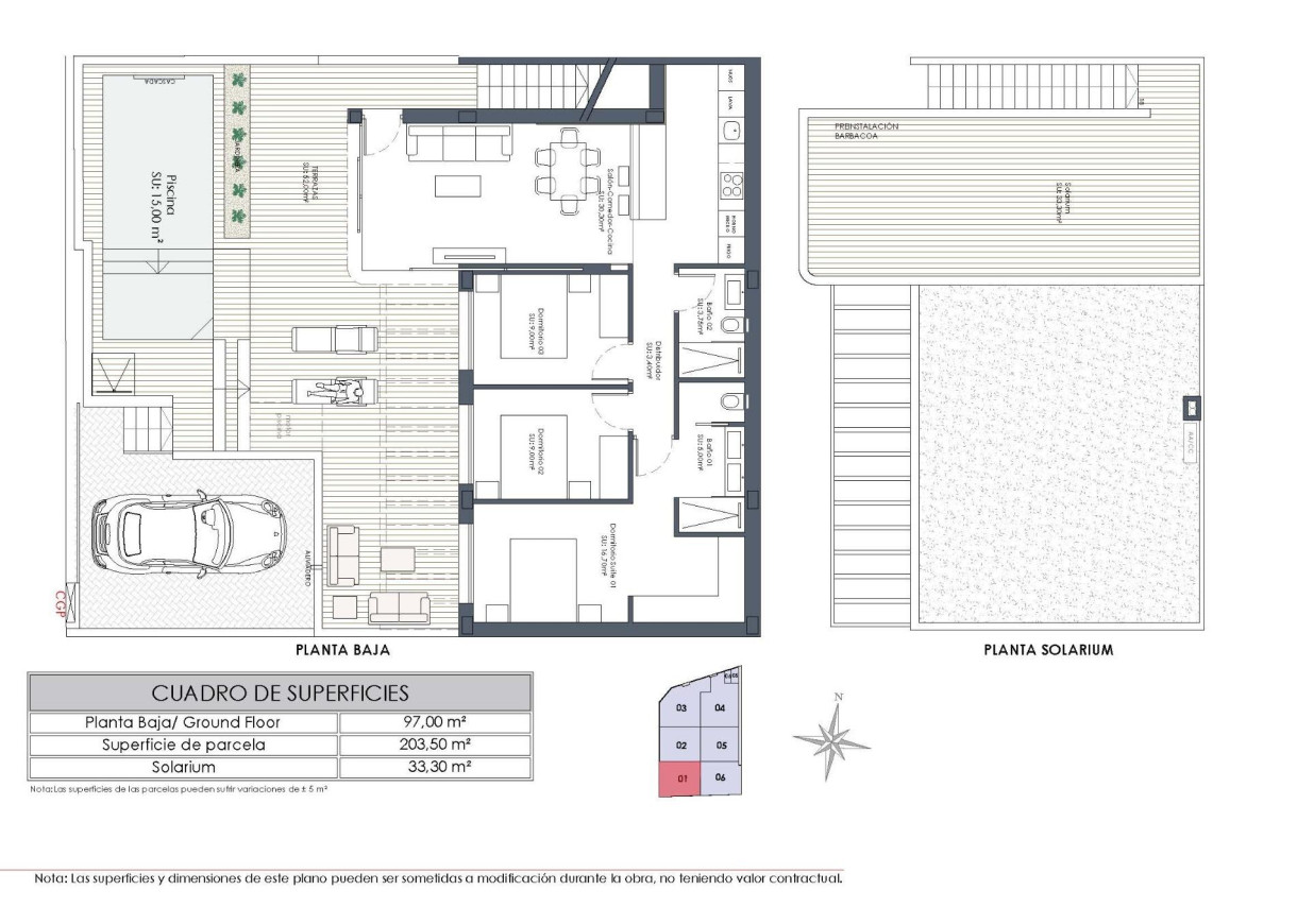
Gelijkvloers ontwerp met ruime buitenruimtes
Elke villa is gelijkvloers ontworpen voor maximaal comfort en toegankelijkheid. De indeling van het interieur omvat een open keuken die in verbinding staat met een lichte woon- en eetkamer, drie ruime slaapkamers en twee moderne badkamers. Buiten beschikt elke woning over een eigen perceel met terras, aangelegde tuin, privézwembad en een parkeerplaats op het perceel (behalve 2 woningen). Een hoogtepunt van deze woningen is het royale privéterras, dat een vrij uitzicht biedt op het omliggende landschap en de perfecte ruimte is om het hele jaar door te genieten van het mediterrane klimaat.
Moderne afwerking en energiezuinige voorzieningen
Deze nieuwbouwwoningen zijn gebouwd met moderne materialen en hoogwaardige afwerkingen. Ze zijn voorzien van elektrische rolluiken, een compleet verlichtingspakket voor binnen en buiten, en badkamers met meubilair, spiegels en doucheschermen. Warm water wordt geleverd door een efficiënt aerothermisch systeem, wat de energie-efficiëntie en duurzaamheid ten goede komt. De woningen zijn ook voorzien van een pre-installatie voor airconditioning, zodat toekomstige eigenaren het klimaatsysteem aan hun behoeften kunnen aanpassen.
Goed bereikbare locatie in de buurt van stranden en golfbanen
Dolores ligt op een uitstekende locatie met gemakkelijke toegang tot de belangrijkste kust- en recreatiegebieden van de Costa Blanca. De zandstranden van Guardamar del Segura en Torrevieja liggen op ongeveer 12 km afstand en bieden lange promenades, natuurlijke duinen en een breed scala aan strandactiviteiten. Verschillende bekende golfbanen, zoals La Finca, La Marquesa en Vistabella Golf, liggen binnen 10 tot 15 km. Waterparken en recreatieve attracties zijn te vinden in het nabijgelegen Rojales en Torrevieja.
Belangrijkste afstanden en bezienswaardigheden
De stranden van Guardamar en Torrevieja liggen op ongeveer 12 km afstand. De luchthaven van Alicante ligt op ongeveer 30 km of 25 minuten rijden met de auto en biedt regelmatige verbindingen met grote Europese steden. De stad Elche ligt op ongeveer 20 km afstand, terwijl het centrum van Alicante op ongeveer 35 km ligt. De nabijgelegen jachthavens en havens in Guardamar en Torrevieja dragen bij aan de aantrekkelijkheid van de levensstijl.
Uw mediterrane huis wacht op u
Deze exclusieve herenhuizen in Ibiza-stijl in Dolores bieden modern wonen, privacy en een uitstekende locatie dicht bij stranden, golfbanen en voorzieningen. Neem vandaag nog contact met ons op voor meer informatie of om een bezichtiging te regelen en uw nieuwe huis aan de Costa Blanca te bemachtigen.