NIEUWBOUWVILLA'S MET ZWEMBAD IN HONDON DE LAS NIEVES
Ontdek de elegantie en het comfort van deze prachtige vrijstaande villa's van 108 tot 128 m2, ontworpen om u een uitzonderlijke levensstijl te bieden, allemaal gelijkvloers.
Geniet van de privacy die deze villa u biedt, waar u kunt ontspannen in uw eigen tuin, een oase van rust kunt creëren of kunt afkoelen in uw privézwembad om te genieten van de warme zomerdagen.
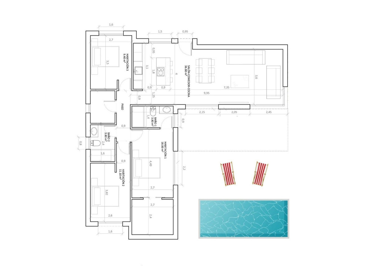
De woning is verdeeld in twee grote zones:
Dagzone: Hier vinden we een ruime woon-eetkamer met open keuken (keukenmeubels inbegrepen) die via twee grote ramen in verbinding staat met de grote, moderne veranda, die toegang geeft tot de aangelegde buitenruimte en het zwembad.
Als extra ruimte is er een wasruimte, strategisch gelegen in de indeling van de woning, die vanuit elk punt van het huis gemakkelijk toegankelijk is.
Rustige zone: In deze zone zijn er 3 slaapkamers. De hoofdslaapkamer heeft een ruime kleedkamer en een en-suite badkamer. Er is ook een tweede badkamer voor de andere slaapkamers en de rest van het huis.
Gelegen in een rustige woonwijk, biedt deze villa u de privacy en rust die u wenst, terwijl u toch op korte afstand bent van voorzieningen, winkels, supermarkten en restaurants. Het is de perfecte balans tussen rustige afzondering en het comfort van het moderne leven.
In deze urbanisatie van Hondón de las Nieves is elke dag een kans om contact te maken met de wereld.
Hondón de las Nieves is een gemeente in de regio Valencia, Spanje.
Het ligt in het zuidwesten van de provincie Alicante, in de streek Vinalopó Medio.
De stranden en de luchthaven van Alicante liggen vlakbij, op slechts 30 minuten rijden.