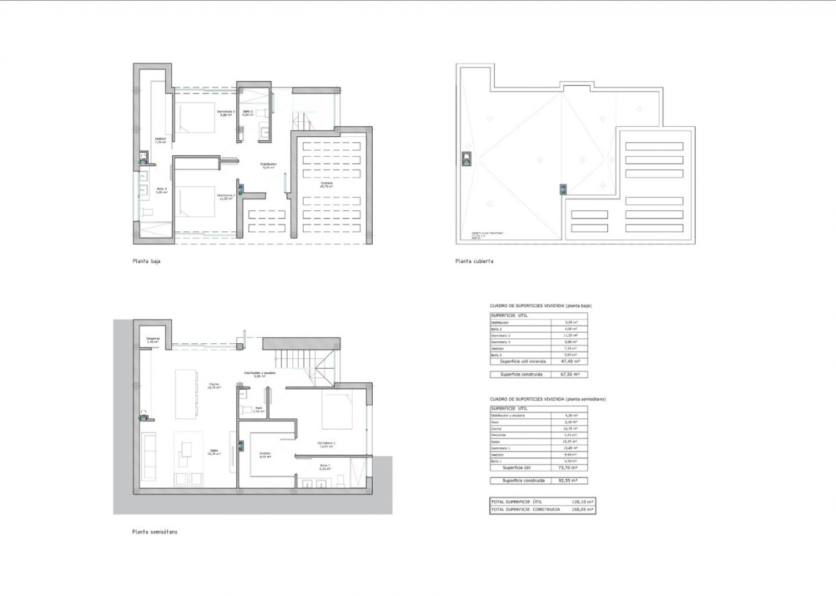
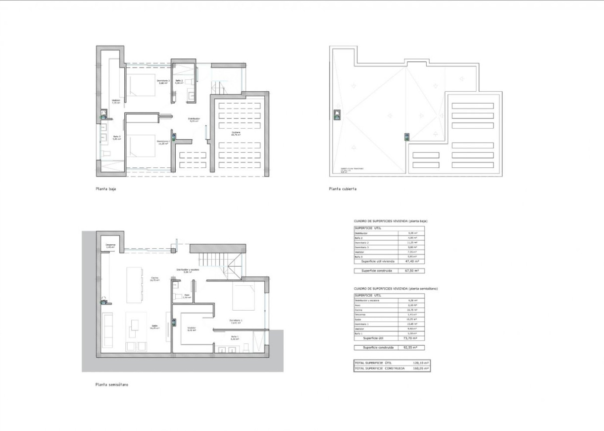
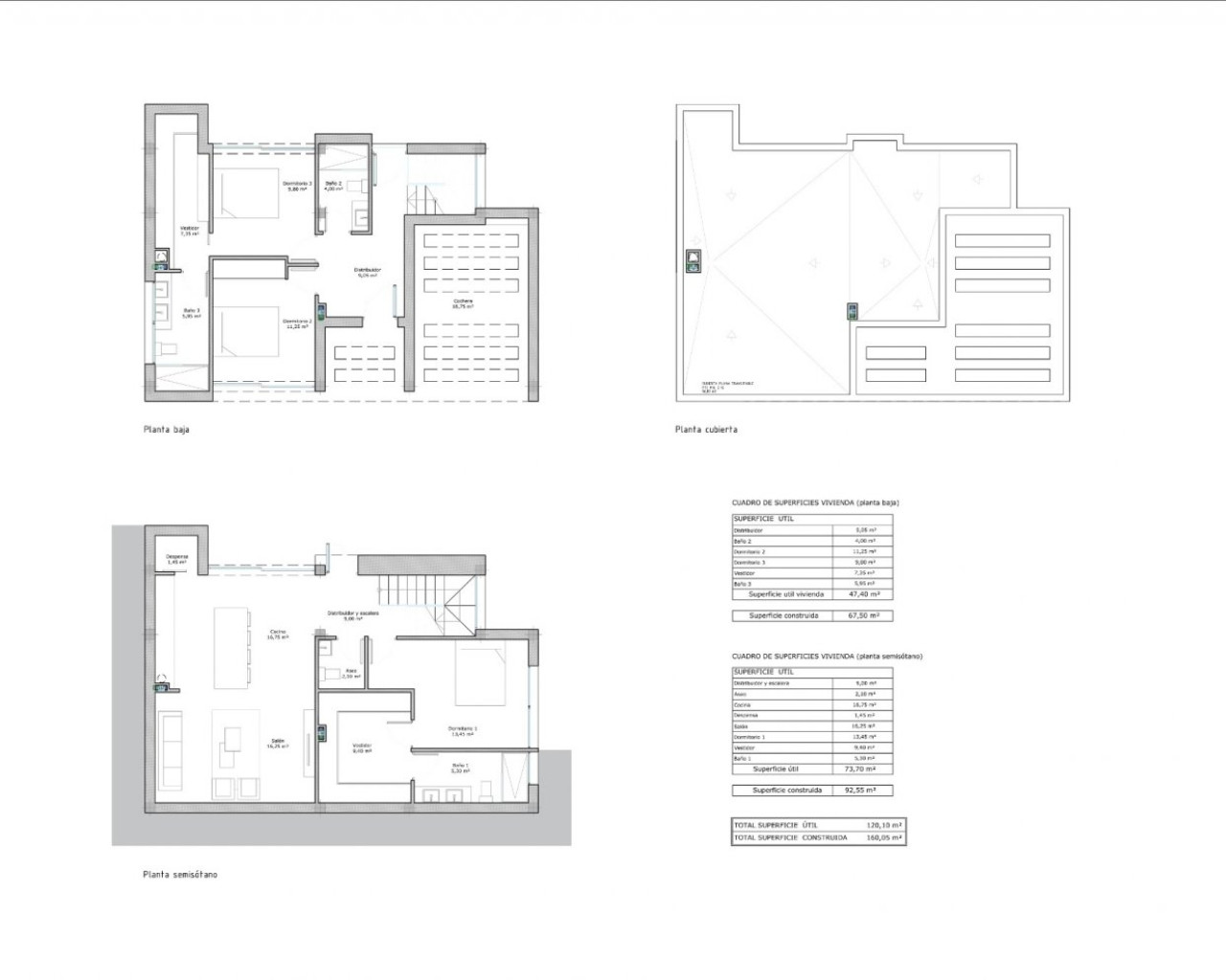
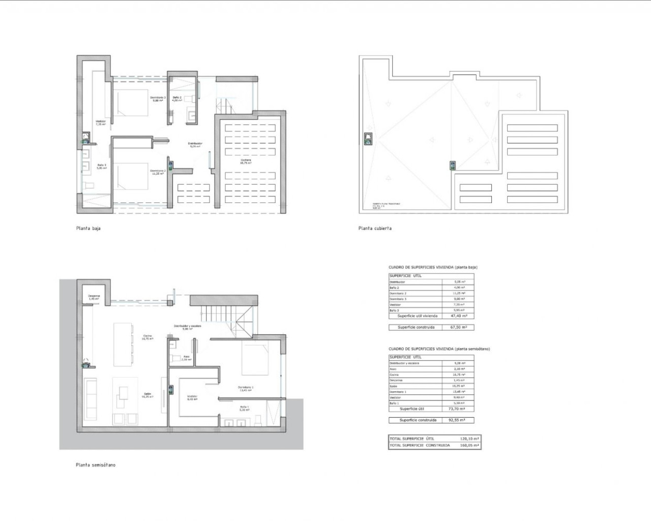
NEW BUILD VILLAS IN FORTUNA New Build villas in Fortuna, Murcia. Independent villa build over 2 floors and has 3 bedrooms, 2 bathrooms, 2 dressing rooms, open plan kitchen with the lounge area, garage, private garden with swimming pool. The town of Fortuna is less than 3km away for day to day shopping and the city of Murcia is 25km away where there is a wide range of gastronomic and leisure facilities. The climate on the Costa Cálida, often considered the best in Europe, makes possible a very sociable and healthy lifestyle, outdoors, marked by fantastic sports and leisure facilities, with exciting and cosmopolitan tourist cities, which stand out for the provision of top class services, some of them exclusive, considered true luxury. The Costa Cálida of Murcia has more than 300 days of sunshine a year. In addition to the golf courses and marinas that you can enjoy all along the coast, the area also offers the possibility of skiing in the nearby Sierra Nevada, a paradise for winter sports lovers, with beautiful natural landscapes. The possibility to enjoy all kinds of cultural and leisure offerings of nearby capitals such as Murcia and Cartagena . A paradise with excellent connections to the whole of Europe. Alicante-Elche and Murcias Corvera Airports located an hour away.