Advanced search

Aspe · Poligono 19 Villa · New Build

€637.000
Ref.: RSL-99995

Aspe · Poligono 19 Villa · New Build

€637.000

Property Features

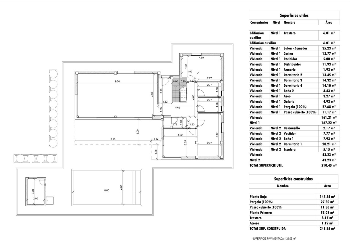
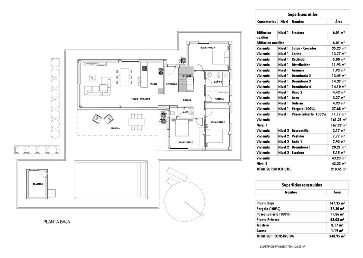
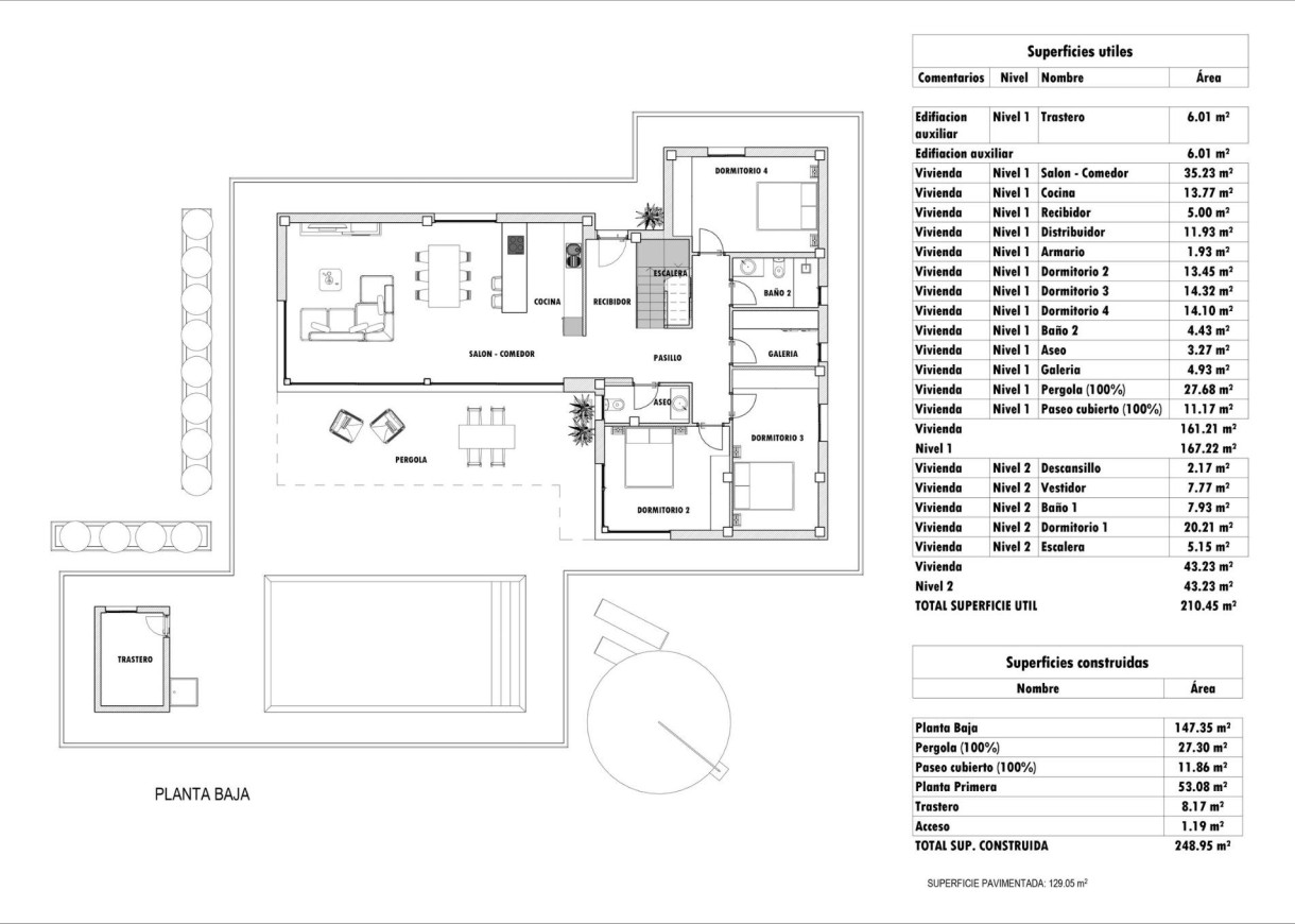
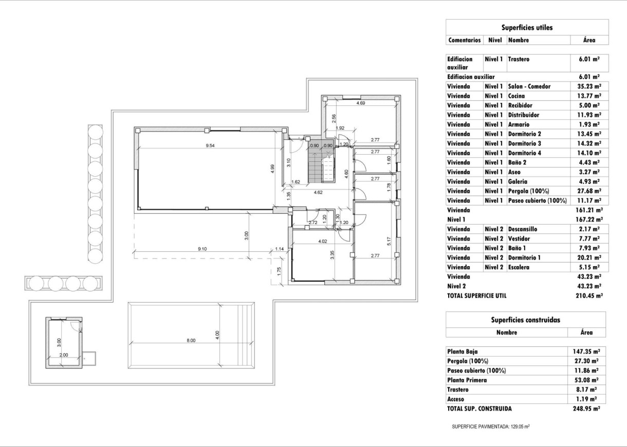
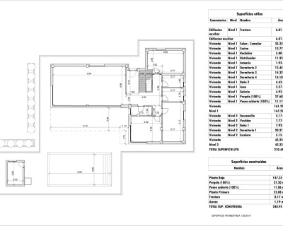
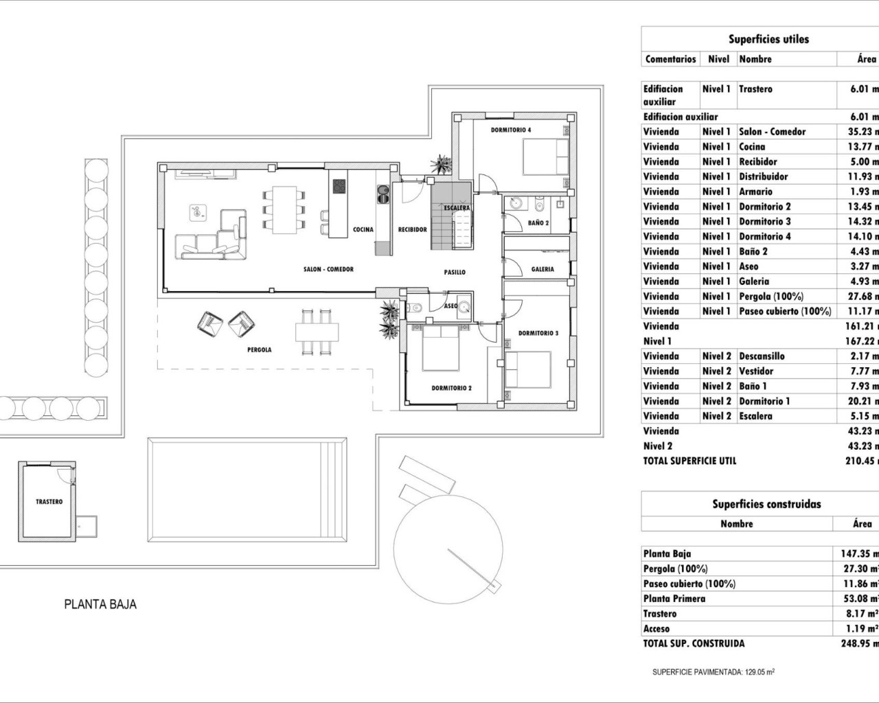
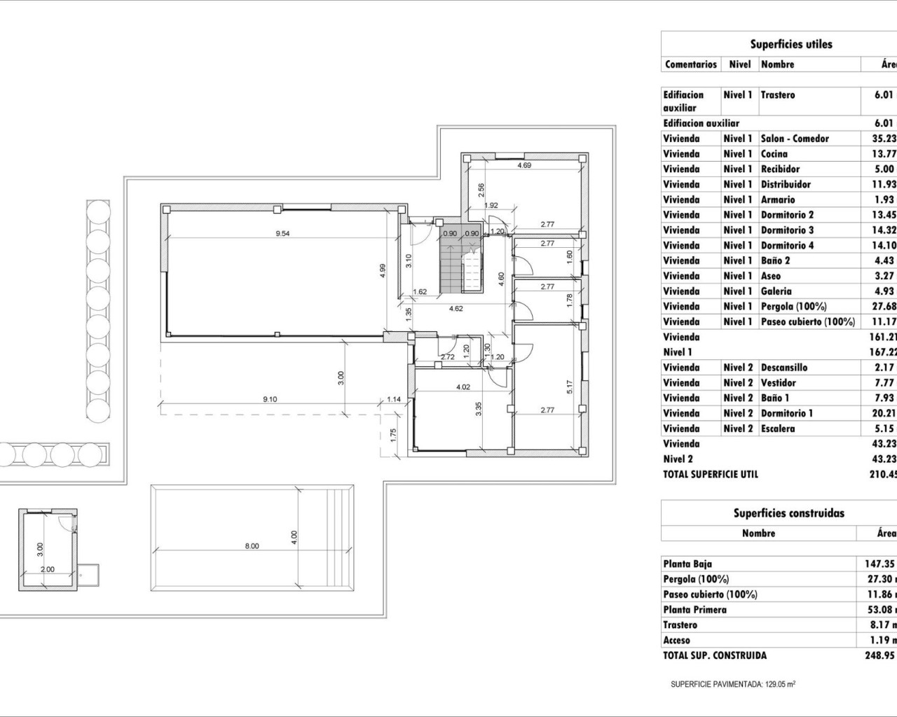
Bedrooms: 4
Bathrooms: 3
Built: 248m2
Plot: 13.172m2
Pool: Yes
Air Conditioning: Pre-Installed
Double Bedrooms: 4
Terrace: 38 Msq.
Location: Rural, Mountain
Parking - Space
Beach: 25000 Meters
Useable Build Space: 210 Msq.
Storage / Trastero
Garden
Private Pool
Gated
Number of Parking Spaces: 1
Near Schools

Property description

Property location

Enquire now

Responsable del tratamiento: Sell2Go, Finalidad del tratamiento: Gestión y control de los servicios ofrecidos a través de la página Web de Servicios inmobiliarios, Envío de información a traves de newsletter y otros, Legitimación: Por consentimiento, Destinatarios: No se cederan los datos, salvo para elaborar contabilidad, Derechos de las personas interesadas: Acceder, rectificar y suprimir los datos, solicitar la portabilidad de los mismos, oponerse altratamiento y solicitar la limitación de éste, Procedencia de los datos: El Propio interesado, Información Adicional: Puede consultarse la información adicional y detallada sobre protección de datos Aquí.
WhatsApp