Modern New Build Villa Near the Sea in Javea
Exclusive Mediterranean Living in Javea
Discover this stunning contemporary villa located in one of the most sought after and peaceful areas of Javea, just 800 meters from the sea. Nestled between pine trees and close to the famous Cala de la Barraca and Cala del Portixol, this residence offers a privileged lifestyle surrounded by nature and coastal beauty. Javea, situated on the Costa Blanca between Alicante and Valencia, is known for its crystal clear waters, charming old town and year round mild climate, making it one of the most desired destinations in the Mediterranean.
Elegant Design and Bright Open Spaces
Designed for comfort and style, this villa features a modern architecture with soft lines, large windows and fluid indoor outdoor integration. Natural light bathes every corner, creating a warm and inviting ambiance ideal for both living and entertaining.
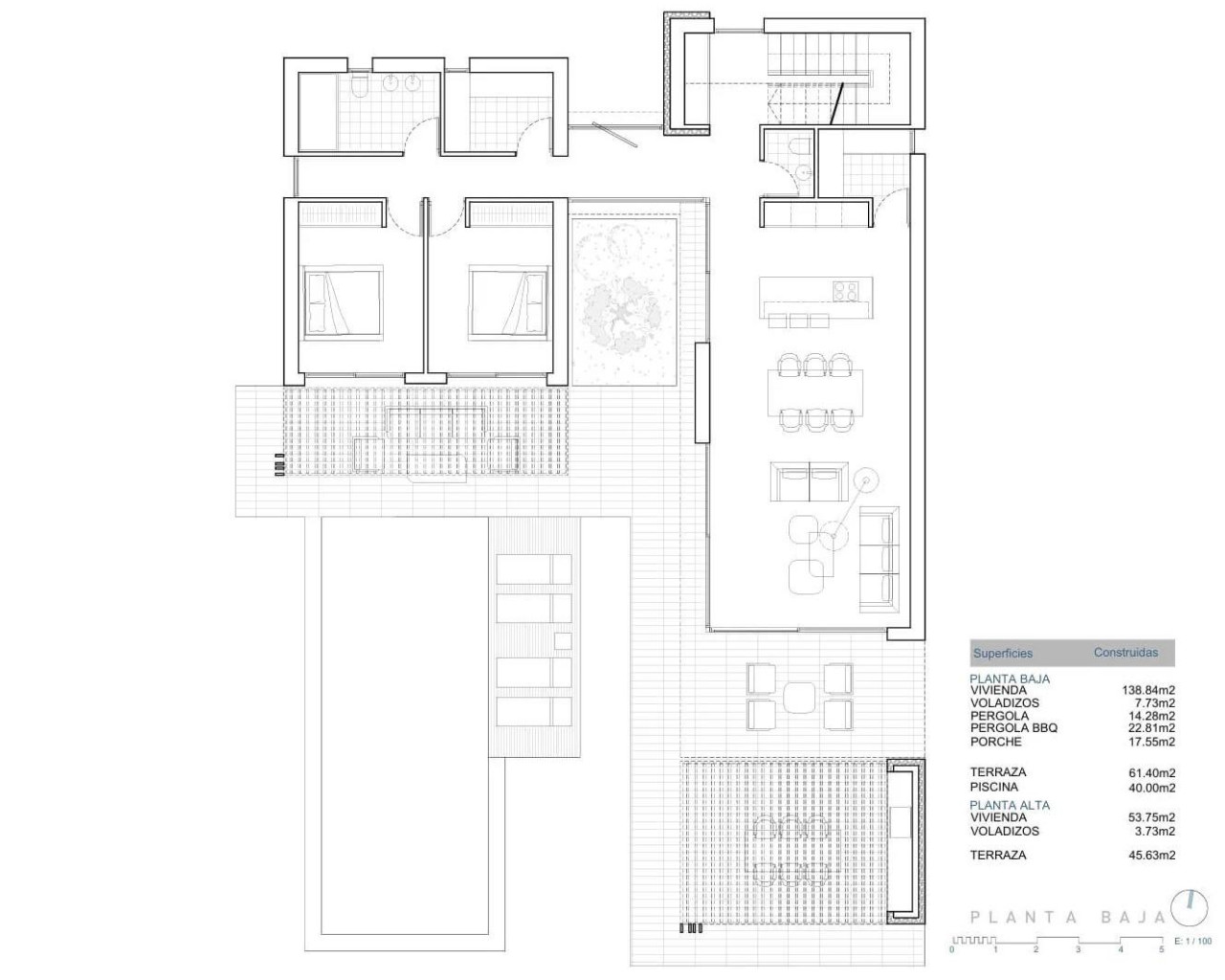
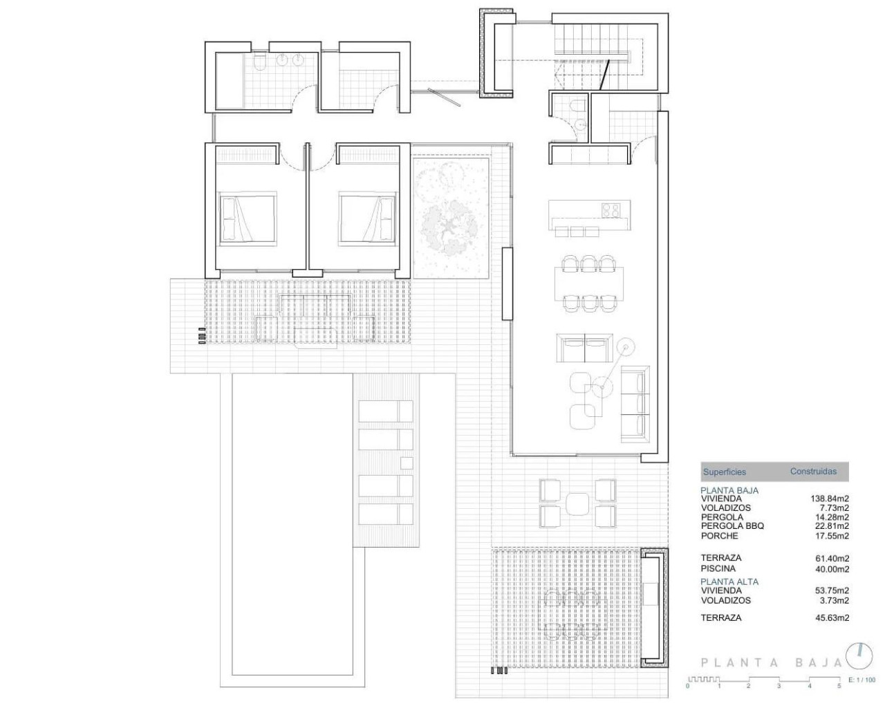
The villa is distributed across two floors and includes
Open plan living and dining area with seamless access to terraces and pool
Fully furnished open concept kitchen
3 bedrooms and 2 bathrooms plus 1 guest toilet
Laundry and pantry room
Private garden, terraces and pool area with summer kitchen
Private Master Suite and Outdoor Lifestyle
The ground floor includes two bedrooms, a bathroom and spacious social areas. On the upper floor, the master bedroom offers a private sanctuary with en suite bathroom, a generous walk in wardrobe and a 45 m2 terrace, perfect for enjoying sunrise views and Mediterranean breezes. The outdoor space has been designed for relaxation, featuring a private pool, sun terraces and lush surroundings that ensure tranquility and privacy.
Prime Location in Costa Blanca North
Javea offers an exceptional lifestyle with beautiful beaches, hiking routes, marinas, golf courses and gourmet restaurants. The town is 92 km from Alicante and 105 km from Valencia.
Key distances
Beach and Cala del Portixol: 0.8 km
Javea Port and Marina: 8 km
Javea Golf Club: 10 km
Alicante Airport: 100 km
Valencia Airport: 125 km
Your Mediterranean Home Awaits
Whether you are seeking a permanent residence, a luxury holiday retreat or a premium investment, this villa delivers privacy, comfort and an exceptional coastal setting. Contact us today for more information or to arrange a viewing of this exclusive modern home in Javea.