Búsqueda Avanzada

Torrevieja · Los Balcones Bungalow · Nueva construcción

€340.000
Ref.: RSL-23679

Torrevieja · Los Balcones Bungalow · Nueva construcción

€340.000

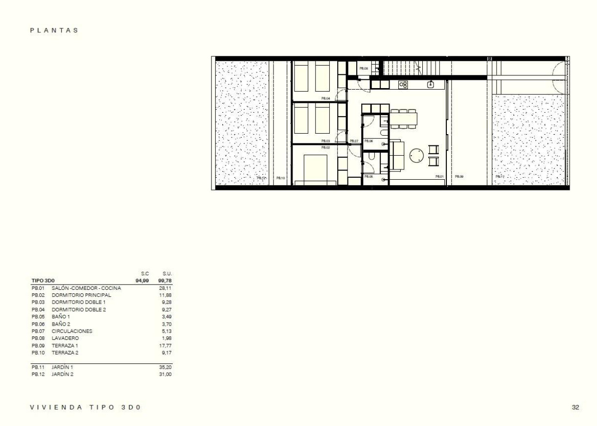
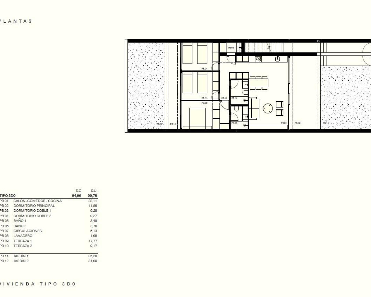
Propiedad Características

Habitaciones: 3
Baños: 2
Construidos: 99m2
Parcela: 76m2
Piscina:
Garden
Gated
Number of Parking Spaces: 1
Near Golf / Golf Resort Property
Near Schools
Air Conditioning: Pre-Installed
Double Bedrooms: 3
Near Commercial Center
Communal Pool
Location: Coastal, Urbanisation
Useable Build Space: 94 Msq.
Beach: 3500 Meters
Terrace: 27 Msq.
Parking - Space
Storage / Trastero

Descripción de propiedad

Localización de la propiedad

Pregunte ahora

Responsable del tratamiento: Sell2Go, Finalidad del tratamiento: Gestión y control de los servicios ofrecidos a través de la página Web de Servicios inmobiliarios, Envío de información a traves de newsletter y otros, Legitimación: Por consentimiento, Destinatarios: No se cederan los datos, salvo para elaborar contabilidad, Derechos de las personas interesadas: Acceder, rectificar y suprimir los datos, solicitar la portabilidad de los mismos, oponerse altratamiento y solicitar la limitación de éste, Procedencia de los datos: El Propio interesado, Información Adicional: Puede consultarse la información adicional y detallada sobre protección de datos Aquí.
WhatsApp