Búsqueda Avanzada

Torrevieja · Los Balcones Bungalow · Nueva construcción

€259.000
Ref.: RSL-26409

Torrevieja · Los Balcones Bungalow · Nueva construcción

€259.000

Propiedad Características

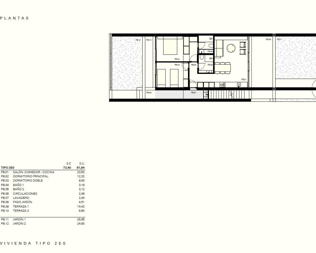
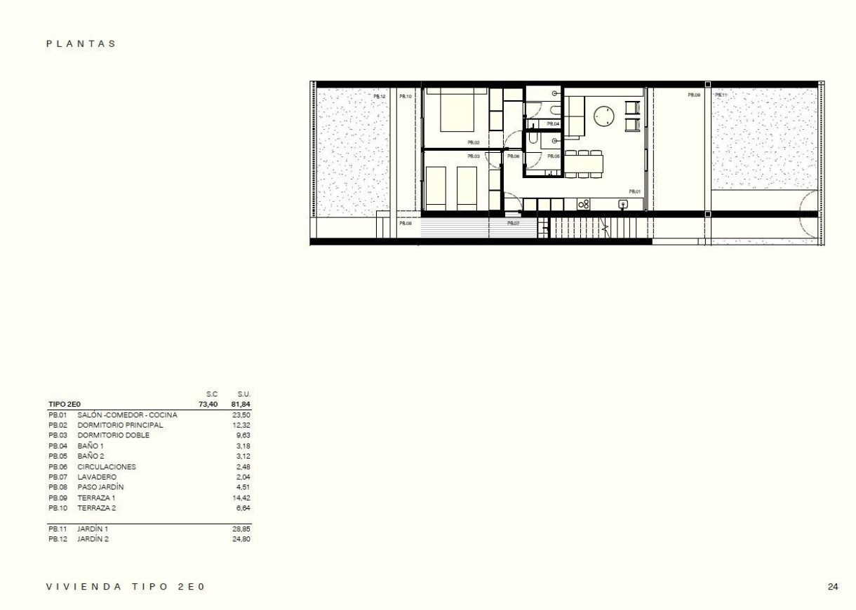
Habitaciones: 2
Baños: 2
Construidos: 81m2
Parcela: 53m2
Piscina:
Beach: 3500 Meters
Terrace: 20 Msq.
Parking - Space
Storage / Trastero
Garden
Gated
Number of Parking Spaces: 1
Near Golf / Golf Resort Property
Near Schools
Air Conditioning: Pre-Installed
Near Commercial Center
Double Bedrooms: 2
Communal Pool
Location: Coastal, Urbanisation
Useable Build Space: 73 Msq.

Descripción de propiedad

Localización de la propiedad

Pregunte ahora

Responsable del tratamiento: Sell2Go, Finalidad del tratamiento: Gestión y control de los servicios ofrecidos a través de la página Web de Servicios inmobiliarios, Envío de información a traves de newsletter y otros, Legitimación: Por consentimiento, Destinatarios: No se cederan los datos, salvo para elaborar contabilidad, Derechos de las personas interesadas: Acceder, rectificar y suprimir los datos, solicitar la portabilidad de los mismos, oponerse altratamiento y solicitar la limitación de éste, Procedencia de los datos: El Propio interesado, Información Adicional: Puede consultarse la información adicional y detallada sobre protección de datos Aquí.
WhatsApp